Nueva Promoción Residencial – Dúplex Ferrers, Tarragona

  • 175.000€
  • 0€
  • Dúplex, Residencial
  • Tipo de propiedad
  • 1
  • Lavabo
  • 67.00
  • 2025
  • Any de construcció
En venta De 2ª mano

Nueva Promoción Residencial – Dúplex Ferrers, Tarragona

  • 175.000€
  • 0€

Descripción

Presentamos una exclusiva promoción compuesta por tres viviendas tipo dúplex de obra nueva, ubicadas en una de las zonas más privilegiadas y emblemáticas del centro histórico de Tarragona: la calle Ferrers, en plena Part Alta.
Se trata de una oportunidad única para residir en un entorno con alto valor patrimonial, rodeado de algunos de los principales monumentos históricos de la ciudad, como el Ayuntamiento, el Circo Romano y la Catedral.
Las viviendas, completamente rehabilitadas, combinan el encanto de una finca con carácter histórico —conservando elementos originales como paredes de piedra vista— con un diseño contemporáneo que prioriza la funcionalidad, la elegancia y el confort. Cada dúplex ha sido cuidadosamente diseñado para integrar modernidad y tradición, ofreciendo una experiencia residencial exclusiva en un entorno singular.

Características de las viviendas:

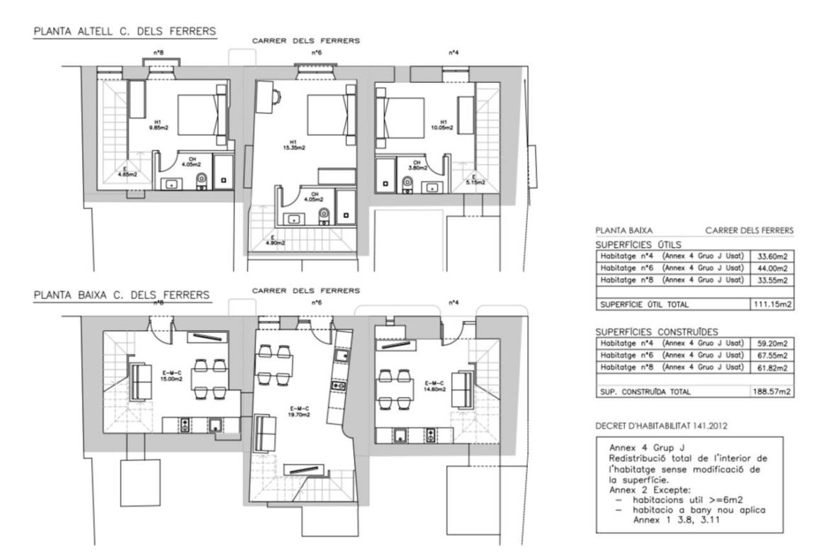
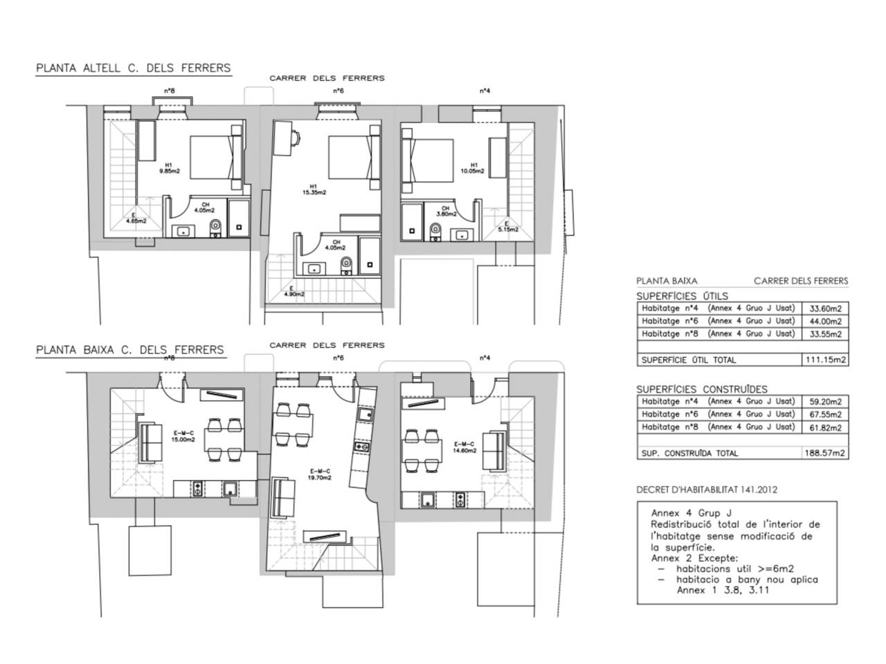
• Dúplex 4: 59,20 m² construidos. Dispone de una habitación en suite y se distribuye en dos plantas optimizadas para el confort diario.
• Dúplex 6: 67,55 m² construidos. Espacios amplios y bien distribuidos, con un diseño que combina la esencia patrimonial con una estética moderna y funcional.
• Dúplex 8: 61,82 m² construidos. Pensado para quienes valoran la comodidad actual sin renunciar al carácter único de lo auténtico.

La ubicación destaca no solo por su riqueza histórica y cultural, sino también por su excelente conectividad con el resto de la ciudad, incluyendo el acceso próximo a la Rambla Nova, principal arteria comercial y de servicios de Tarragona.

Una propuesta residencial exclusiva que aúna historia, diseño y calidad de vida.

Solicite más información o reserve una visita para conocer de primera mano esta magnífica oportunidad de vivir en el corazón de Tarragona.

Dirección

  • Dirección Calle Ferrers 4
  • Ciudad Tarragona Capital
  • Provincia Tarragona
  • Código postal 43003
  • Zona Part Alta
  • País España

Detalles

Actualizado en junio 4, 2025 at 12:00 am
  • ID propiedad: HZ55037955499.198400
  • Precio: 175.000€
  • Tamaño de la propiedad: 67.00 m²
  • Superficie del terreno: 0.00 m²
  • Habitació: 1
  • Lavabo: 1
  • Any de construcció: 2025
  • Tipo de propiedad: Dúplex, Residencial
  • Estado de la propiedad: En venta

Compare listings

Compare
god
  • god