Se Vende Local Comercial en la Calle Jaime I de Tarragona

  • 298.000€
  • 0€
En venta De 2ª mano

Se Vende Local Comercial en la Calle Jaime I de Tarragona

  • 298.000€
  • 0€

Descripción

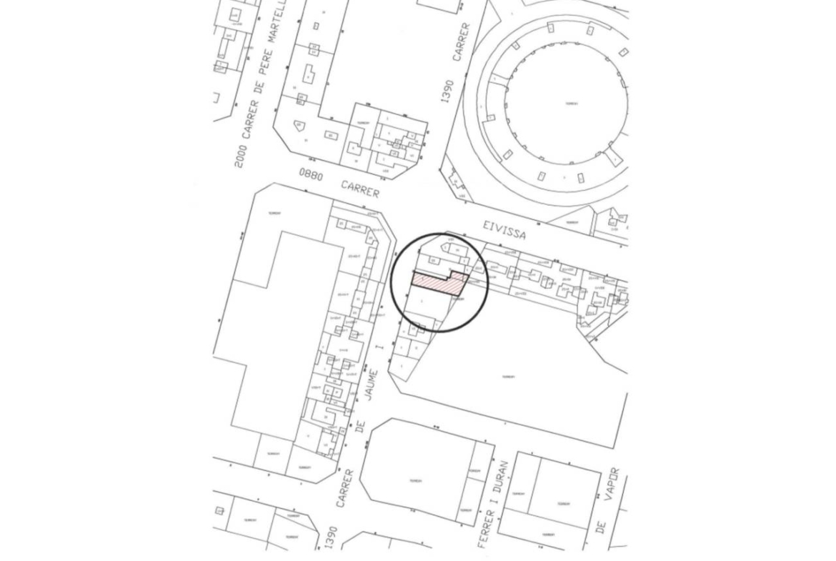
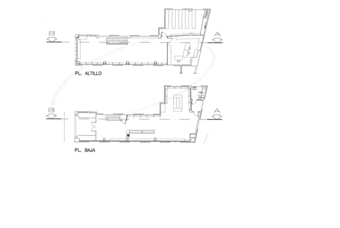
Ubicado en una de las zonas más céntricas y transitadas de Tarragona, este amplio local de 289 m² distribuidos en dos plantas se ofrece en perfectas condiciones para iniciar cualquier tipo de actividad comercial. El espacio ha sido previamente utilizado como empresa de venta de materiales eléctricos, por lo que cuenta con expositores y sistemas actualizados, lo que permite comenzar a trabajar de inmediato sin necesidad de reformas.

La planta baja está perfectamente acondicionada para el uso comercial y dispone de un espacio adicional de almacén de 38 m², ideal para la organización y almacenamiento de productos. El local tiene una excelente distribución, lo que facilita la adaptación a diversas necesidades y tipos de negocios.

Con una ubicación privilegiada en la calle Jaime I, este local es una opción ideal para aquellos que busquen establecer su empresa en una zona de gran afluencia y visibilidad. ¡No pierdas la oportunidad de adquirir un espacio listo para operar!

Dirección

  • Dirección Calle Jaume I 16
  • Ciudad Tarragona Capital
  • Provincia Tarragona
  • Código postal 43005
  • Zona Eixample
  • País España

Detalles

Actualizado en febrero 16, 2025 at 12:18 am
  • ID propiedad: HZ51725349708.198400
  • Precio: 298.000€
  • Tamaño de la propiedad: 323.93 m²
  • Superficie del terreno: 0.00 m²
  • Habitació: 0
  • Lavabo: 0
  • Estado de la propiedad: En venta

Compare listings

Compare
god
  • god